
Нижнее подключение радиаторов: схемы, варианты и инструкции по монтажу
В современном мире теплоснабжение играет ключевую роль в обеспечении комфортного проживания. Каждый хозяин дома или квартиры сталкивается с вопросом, как правильно организовать систему отопления. Ниже мы поговорим о нижнем подключении радиаторов, его преимуществах и недостатках.
Что такое нижнее подключение радиаторов?
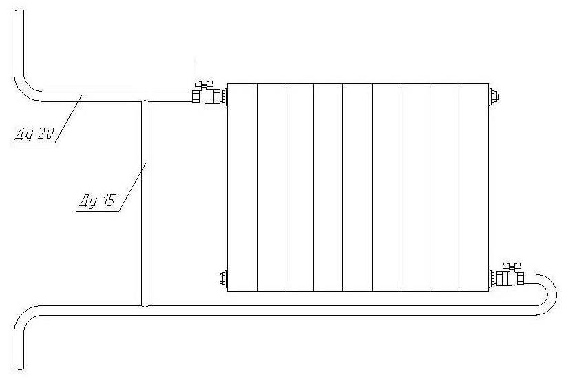
Нижнее подключение радиаторов отопления – это способ, при котором подводящие трубы подключаются снизу. Этот метод часто используется в квартирах и домах с автономными системами отопления. Главный его плюс – это аккуратность и эстетика, ведь трубы можно скрыть в полу, стенах или плинтусах.
Преимущества и недостатки нижнего подключения
Преимущества:
- Эстетика: Все трубы скрыты под полом или декорированы, создавая аккуратный интерьер без лишних деталей.
- Простота монтажа: Несмотря на внешнюю сложность, монтаж с нижним подключением не требует особых навыков, особенно если вы наняли профессионала, как, например, сантехник в Киеве.
Недостатки:
- Потери тепла: Из-за особенностей конструкции могут возникнуть незначительные потери тепла.
- Необходимость в дополнительных аксессуарах: При нижнем подключении возможно потребуется автоматический воздухоотводчик и система промывки.
Варианты схем подключения радиаторов
Рассмотрим несколько основных схем нижнего подключения радиаторов, которые могут использоваться в различных условиях и зависеть от специфики помещения:
Однотрубная система
Это довольно простая система, при которой теплоноситель проходит через все радиаторы последовательно. Это эффективное и экономичное решение для небольших домов.
Двухтрубная система
Здесь теплоноситель подается отдельно ко всем радиаторам, что обеспечивает равномерное распределение тепла. Подходит для больших домов и квартир с несколькими комнатами.
Инструкции по монтажу радиаторов с нижним подключением
Теперь давайте разберемся, как установить радиаторы с нижним подключением собственными руками. Конечно, для таких задач лучше обратиться к профессионалам, например, в ремонт квартир в Киеве, но знание процесса не будет лишним.
Шаг 1: Подготовка
Перед началом установки необходимо определить место расположения радиаторов. Важно, чтобы они находились примерно на уровне средней линии окна для создания естественной конвекции воздуха.
Шаг 2: Установка кронштейнов
Кронштейны нужно устанавливать строго по уровню. Для этого используйте лазер или обычный строительный уровень.
Шаг 3: Подключение труб
Подключите трубы к радиаторам через нижние разъемы. Здесь внимательно следите за герметичностью соединений – это гарантирует отсутствие протечек и длинную службу системы.
Шаг 4: Протестировать
После завершения установки включите систему и проверьте все соединения на наличие утечек, а также целостность всей системы.
Как правильно обслуживать радиаторы с нижним подключением
Регулярное обслуживание поможет избежать проблем с работой радиаторов и продлить срок их службы. Это включает в себя не только очистку пыли, но и проверку герметичности соединений труб. Потребуется и регулярная продувка системы для удаления воздуха из труб. В этом случае на помощь придет чистка канализации в Киеве.
Для более сложных работ, таких как ремонт радиаторов или полусухая стяжка пола в Киеве, все же стоит привлечь специалистов.
Заключение
Нижнее подключение радиаторов – это современное и популярное решение для уютного и комфортного жилья. При должной установке и обслуживании, такие системы долго и надежно прослужат вам. Если вы сомневаетесь в собственных силах, всегда можно обратиться к помощи электрика в Киеве или других специалистов.

FAQ
Что такое нижнее подключение радиаторов и какие преимущества оно предоставляет?
Нижнее подключение радиаторов — это способ подключения отопительного прибора, при котором подводящие трубы находятся внизу радиатора. Это решение предоставляет несколько преимуществ, включая более эстетичный вид, так как трубы скрыты от глаз и не создают визуального хаоса в интерьере. Кроме того, такое подключение снижает риск замерзания труб в холодные месяца, так как они находятся ближе к источнику теплоты, что тем самым повышает эффективность отопления в помещении.
Какие схемы нижнего подключения радиаторов наиболее распространены?
Наиболее распространёнными схемами нижнего подключения радиаторов являются однотрубная и двухтрубная системы. При однотрубной системе теплоноситель проходит последовательно через все радиаторы, что упрощает монтаж, но может привести к неравномерному обогреву. В двухтрубной системе каждый радиатор подключён к подающему и обратному трубопроводу, что обеспечивает равномерный обогрев и возможность более точной регулировки температуры в каждом помещении, что делает её более эффективной.
Какие особенности монтажа нижнего подключения радиаторов следует учитывать?
Монтаж нижнего подключения радиаторов требует внимания к деталям, в частности, важно правильно рассчитать высоту установки радиатора и расстояние от стены. Следует учитывать наличие запорной арматуры, чтобы можно было проводить обслуживание, не отключая всю систему. К тому же необходима герметичность соединений, чтобы избежать утечек. Также рекомендуется использовать компенсационные элементы для предотвращения деформации труб при нагреве, так как это может привести к повреждениям системы.
Как выполнить наладку системы отопления после установки радиаторов с нижним подключением?
После установки радиаторов с нижним подключением необходимо выполнить наладку системы отопления для обеспечения её оптимальной работы. Первым шагом является заполнение системы теплоносителем и удаление воздуха из радиаторов при помощи воздухоотводчиков. Далее следует проверить равномерность обогрева, регулируя температуру на каждом радиаторе. Также важно убедиться, что нет протечек и система функционирует под нужным давлением. Регулярный осмотр и обслуживание системы помогут избежать неполадок и обеспечить долгосрочное использование радиаторов./span>
Каковы основные преимущества нижнего подключения радиаторов отопления?
Нижнее подключение радиаторов отопления представляет собой один из самых распространённых способов организации системы отопления в жилых и офисных помещениях. Первым и, пожалуй, главным преимуществом нижнего подключения является эстетика. Поскольку все трубы располагаются ближе к полу и менее заметны, можно создать более аккуратный и стильный интерьер. Это особенно важно в помещениях с высокими потолками или в тех случаях, когда требуется сохранить чистоту линий в дизайне. Кроме того, скрытая установка труб облегчает уборку, так как исключает накопление пыли на видимых элементных системах.
Вторым важным аспектом является эффективность теплоотдачи. Нижнее подключение обеспечивает более равномерное распределение тепла по всему помещению, так как горячая вода подаётся снизу, прогревая воздух, который постепенно поднимается вверх. Это позволяет снизить общую температуру в помещении, что особенно актуально для тех, кто живёт в условиях мягкого климата и хочет оптимизировать отопление.
Также стоит отметить простоту обслуживания. Во время технического обслуживания или ремонта системы легко получить доступ к радиаторам, поскольку что все соединения находятся ниже уровня подоконника. В случае необходимости замены радиатора процесс будет более удобным и не потребует значительных затрат времени.
Не в последнюю очередь следует упомянуть о гибкости в проектировании систем отопления. Нижнее подключение может быть использовано в сочетании как с однотрубной, так и с двухтрубной схемой отопления, что даёт возможность подобрать оптимальный режим работы и соответствовать конкретным требованиям помещения. Все эти преимущества делают нижнее подключение радиаторов отопления привлекательным выбором для многих домовладельцев и строителей.
Какие схемы нижнего подключения радиаторов отопления существуют и как их правильно выбрать?
Существует несколько основных схем нижнего подключения радиаторов отопления, каждая из которых имеет свои особенности и области применения. Наиболее распространённые схемы включают боковое подключение, диагональное подключение и подводку к одним трубам с нижним выводом. Боковое подключение предполагает, что подача теплоносителя осуществляется с одной стороны, а обратка — с другой. Эта схема хорошо подходит для радиаторов с меньшей теплоотдачей и позволяет упростить монтаж.
Диагональное подключение осуществляется так, что подача и обратка располагаются по диагонали, что обеспечит более высокую эффективность теплоотдачи. Эта схема рекомендуется для радиаторов большой мощности, так как она помогает минимизировать гидравлические потери и увеличивает равномерность нагрева.
Подводка к одним трубам с нижним выводом отлично себя зарекомендовала в условиях ограниченного пространства, когда необходимо максимально организовать пространство, не нарушая его эстетики. Выбор схемы зависит от множества факторов: площади помещения, мощности радиаторов, планировки системы отопления и даже от дизайнерских решений. При выборе схемы важно учитывать специфику конкретного помещения и его отопительных потребностей.
При этом стоит помнить, что любое подключение должно соответствовать требованиям строительных норм и стандартов, а также рекомендациям производителей радиаторов. Обязательно проведите предварительные расчёты для определения длины и диаметра труб, чтобы избежать перегрева или недостаточного прогрева помещения. Правильно выбранная схема подключения радикально влияет на эффективность отопительной системы, поэтому рекомендуется обратиться за советом к специалисту, который поможет подобрать оптимальный вариант в вашем случае.
Каковы этапы монтажа радиаторов с нижним подключением и на что обратить внимание?
Монтаж радиатора с нижним подключением можно разделить на несколько последовательных этапов. Начинать сборку лучше с проверки всего необходимого оборудования и инструментов для работы. Это могут быть специальные зажимы, отводы, краны и, конечно, сам радиатор. Не забудьте также подготовить соответствующую мебель и инструменты: уровень, перфоратор, ключи и герметики.
Следующий этап включает в себя разметку местоположения радиатора и труб. Обычно радиатор устанавливают на расстоянии порядка 10 сантиметров от пола и примерно 10–15 сантиметров от подоконника, чтобы обеспечить оптимальный нагрев. Затем необходимо осуществить монтаж кронштейнов, на которых будет держаться радиатор. После установки кронштейнов нужно подключить трубы: начните с подачи, затем переходите к обратной. Следите за тем, чтобы все соединения были качественно зафиксированы и герметично закрыты.
При осуществлении подключения важно обратить внимание на направление потока и соблюдение углов подключений – необходимо, чтобы они были как можно более плавными. Это позволит избежать повышенного гидравлического сопротивления. Не забудьте проверить уровень установки радиатора и, при необходимости, скорректировать его. Используйте строительный уровень для этого.
Завершив монтаж, обязательно проверьте систему на герметичность. Запустите отопление и внимательно проследите за отсутствием протечек в местах соединений. Периодический контроль таких соединений в будущем поможет избежать неприятных ситуаций, связанных с коррозией или повреждением конструкции. Настоятельно рекомендуется также установить терморегуляторы — это увеличит эффективность работы системы и позволит регулировать температуру в помещениях в зависимости от времени года.
Какие распространенные ошибки допускают при подключении радиаторов с нижним подключением и как их избежать?
Несмотря на относительную простоту монтажа радиаторов с нижним подключением, нередко мастера допускают распространённые ошибки, которые могут негативно сказаться на эффективности работы всей системы отопления. Одной из таких ошибок является неправильный расчёт мощности радиатора. Часто радиатор выбирается без учёта площади помещения, что приводит к недостаточному или, наоборот, избыточному обогреву. Рекомендуется проводить предварительные расчёты, учитывая площадь помещения, количество окон, уровень теплоизоляции и другие характеристики.
Другой распространённой ошибкой является некачественная изоляция труб. Если трубы не утеплены, то они могут терять большое количество тепла, а это приводит к тому, что радиатор будет работать менее эффективно. Для снижения потерь тепла желательно использовать теплоизоляцию для труб, особенно в тех местах, где трубы проходят через неотапливаемые помещения или подвал.
Также нередко допускается недостаточное внимание к герметичности соединений. Протечки в местах соединения труб с радиатором могут вызвать коррозию и, как следствие, необходимость в капитальном ремонте. Желательно использовать качественные уплотнительные материалы и, конечно, проводить регулярные проверки системы после её сборки. Кроме того, не стоит забывать о необходимости установки обратного клапана, который предотвратит обратный поток теплоносителя.
Наконец, ещё одна ошибка — неправильное расстояние между радиатором и стеной или полом. Радиаторы должны быть установлены на оптимальном расстоянии для обеспечения правильной циркуляции воздухом и улучшения теплоотдачи. Соблюдая все вышеназванные рекомендации, можно значительно повысить эффективность отопительной системы и избежать множества распространённых проблем, связанных с её эксплуатацией.